"Nie wystarczy sama wiedza, trzeba jeszcze wiedzieć jak ją stosować" Goethe

Kompleksowa obsługa projektów inżynieryjno-środowiskowych, wsparcie merytoryczne

Eksploatacja i odbiór urządzeń wod-kan
  • komunalne oczyszczalnie ścieków, przydomowe oczyszczalnie – doradztwo techniczne.
  • doradztwo w zakresie eksploatacji obiektów wod-kan (oczyszczalnie ścieków, ujęcia wody, sieci wodno-kanalizacyjne)

Spust ścieków z komunalnej oczyszczalni ścieków typu SBR.

Decyzje środowiskowe
  • Karty Informacyjne Przedsięwzięcia (KIP)
  • Operaty wodnoprawne
  • inwentaryzacja przyrodnicza wybranego terenu (fauna i flora)
  • Raport Oceny Oddziaływania na Środowisko

aparat fotograficzny – szczególnie niezbędny podczas inwentaryzacji ptaków (tzw. ornitofauny)

fotopułapka stosowana podczas inwentaryzacji przyrodniczych

Mapowanie danych GIS
  • budowa dedykowanych wektorowych map
    GIS  w dowolnym układzie współrzędnych
  • analizy widoczności obszarowej (visibility analysis) obiektów OZE

mapowanie danych GIS

Realizacja projektów środowiskowych przy uwzględnieniu aktualnych wymogów prawnych m.in. w postaci wektoryzacji danych wg. standardu określonego w Dz.U. poz. 652 z dnia 22 marca 2022r., w układzie współrzędnych ETRF 2000-PL i formacie *shp.

Brak zgodności z w/w to obecnie częsty powód odmowy uzgodnień przez organy. Od kilku dekad aktywnie uczestniczymy w projektach realizowanych z ramienia Głównego Inspektoratu Ochrony Środowiska m.in. w programie Monitoringu Pospolitych Ptaków Lęgowych (MPPL), Monitoringu Zimujących Ptaków Wodnych (MZPW) czy Monitoringu Flagowych Gatunków Ptaków (MFGP).

Autorski projekt wdrożenia złoża fluidalnego MBBR do oczyszczalni przydomowych w 2010r.

Oczyszczalnie mechaniczno-biologiczne
uzyskanie znaku CE dla produktu
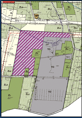
OZE - uzyskanie dla klietna decyzji środowiskowej dla farmy fotowoltaicznej o powierzchni 40ha styczeń 2024.
Clanga pomarina - orlik krzykliwy
inwentaryzacja przyrodnicza
w gminie Regiele Górne

20 letni wolontariat w

Monitoringach Krajowych

MPPL
więcej na stronie wolontariat